Ellesmere Road, Greenford
Property Features
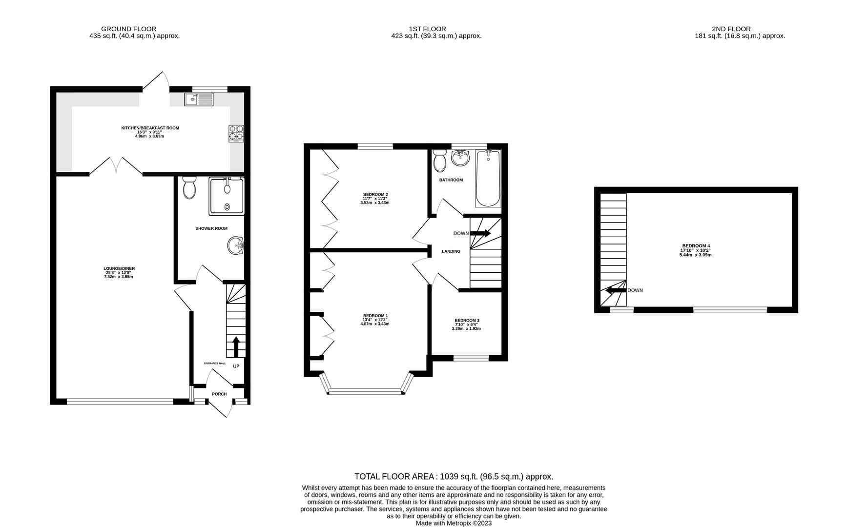
- Extended 4 bedroom family home
- Double glazed
- Gas central heating
- Loft conversion
- Garage
- Through lounge
- Downstairs shower room
- Walking distance of Broadway
Property Summary
Full Details
Porch
Front door to
Entrance Hall
Stairs to first floor, landing, radiator, doors two
Downstairs Shower Room
Wet room with fully tiled walls, wall-mounted wash hand basin, low level, WC, radiator.
Lounge / Diner
Double glazed window to front, radiator, power points, double doors two
Kitchen
Range of iron and base level storage units, full, ring, gas hob, insight into work surface, built in electric, double oven and grill, space and plumbing for washing machine, space for tumble, dryer, power, points, double glazed window and doors to rear garden
Stairs to First Floor
Doors
Bedroom 1
Double glazed window to front, fitted wardrobes, radiator, PowerPoint.
Bedroom 2
Double glazed window to rear, fitted wardrobes, radiator, power points.
Bedroom 3
Double glazed window to front, radiator, PowerPoint.
Bathroom
Panel Enclosed bath with mixer, taps, wall mounted electric shower, fully tiled walls, wall mounted, wash hand basin, low level WC, radiator, double glazed window to Rear
Stairs to 2nd floor
Bedroom 4
Double glazed windows to rear, radiator, fitted wardrobes, power points.
Outside
Front
Fully enclosed garden with range of flowers and shrubs.
Rear
Paved patio area, leading to lawn area, close by concrete wall, variety of tree and shrubs, pathway leading to Garage





















