This property is not currently available. It may be sold or temporarily removed from the market.
Walford Road, Uxbridge
£3,000 pcm
Property Features
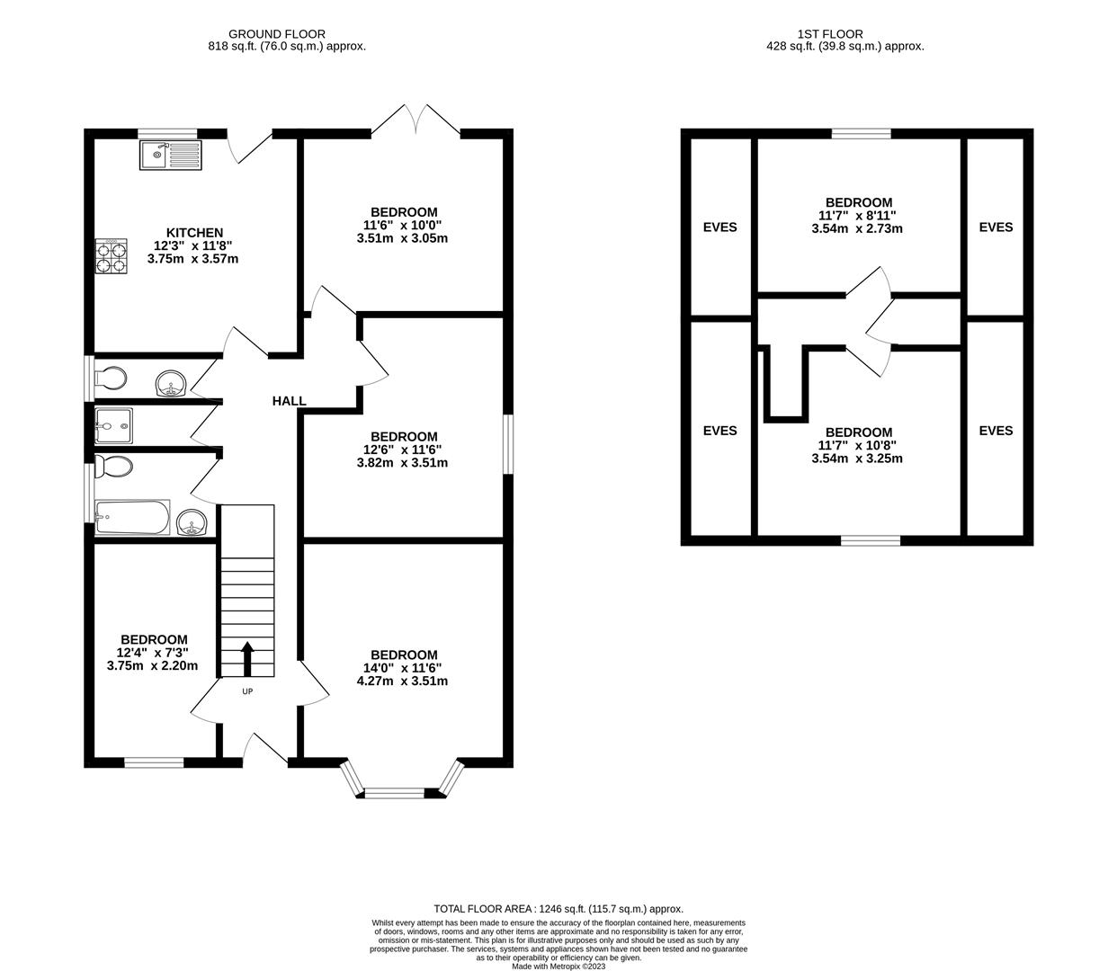
- 5 Bedrooms
- Kitchen diner
- Bathroom
- Shower room
- Separate w.c
- Living room
- Gas central heating
- Garden
- £138 pppw excl bills
- Bills package available £23 PPPW
Property Summary
**STUDENTS**
5 BEDROOMS - AVAILABLE 21/08/2025
The rental payments equate to approx £600 per person per month or £138 per person per week excluding bills.
UniHomes offer a bills package for £23 per person per week. (Incl Gas, Electric, Water, TV licence and internet) which can be organised through Nupad initially.
Nupad offer this excellent SIX bedroom house comprising of FIVE FURNISHED BEDROOMS , TWO BATHROOM KITCHEN, LIVING ROOM, REAR GARDEN.
The property is ideal for students at Brunel University as it's close to campus. It is also nearby to direct bus routes to Uxbridge Town Centre, Heathrow, Stockley Park and the local underground station, which provides further access to Central London.
COUNCIL TAX BAND E
EPC E
5 BEDROOMS - AVAILABLE 21/08/2025
The rental payments equate to approx £600 per person per month or £138 per person per week excluding bills.
UniHomes offer a bills package for £23 per person per week. (Incl Gas, Electric, Water, TV licence and internet) which can be organised through Nupad initially.
Nupad offer this excellent SIX bedroom house comprising of FIVE FURNISHED BEDROOMS , TWO BATHROOM KITCHEN, LIVING ROOM, REAR GARDEN.
The property is ideal for students at Brunel University as it's close to campus. It is also nearby to direct bus routes to Uxbridge Town Centre, Heathrow, Stockley Park and the local underground station, which provides further access to Central London.
COUNCIL TAX BAND E
EPC E



























