Overview
- Updated On:
- February 16, 2026
- 5 Bedrooms
- 2 Bathrooms
Description
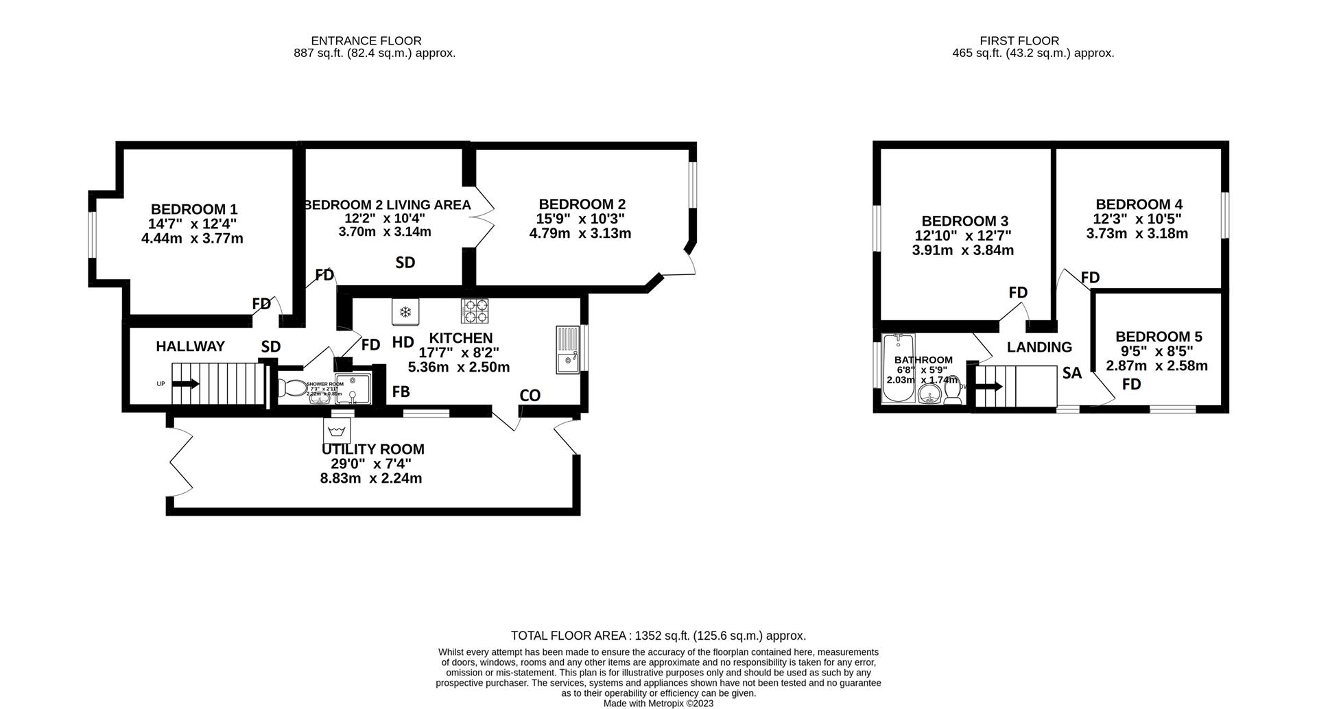
**STUDENTS** 5 BEDROOMS – AVAILABLE 14/07/2026The rental payments equate to approx £623 per person per month or £144 per person per week excluding bills.UniHomes offer a bills package for £24 per person per week. (Incl Gas, Electric, Water, TV licence and internet) which can be organised through Nupad initially.Nupad offer this excellent DETACHED FIVE-bedroom house comprising of FIVE FURNISHED BEDROOMS , one bedroom with living area, upstairs BATHROOM and downstairs shower room, KITCHEN dining room, large utility/communal room, outside provides off street parking and an enclosed rear garden.The property is ideal for students at Brunel University as it’s walking distance to the university. It is also nearby to direct bus routes to Uxbridge Town Centre, Heathrow, Stockley Park and the local underground station, which provides further access to Central London.COUNCIL TAX BAND EEPC E




